Tải ngay File PDF bộ hồ sơ này chỉ với 650K - mã 1T201006
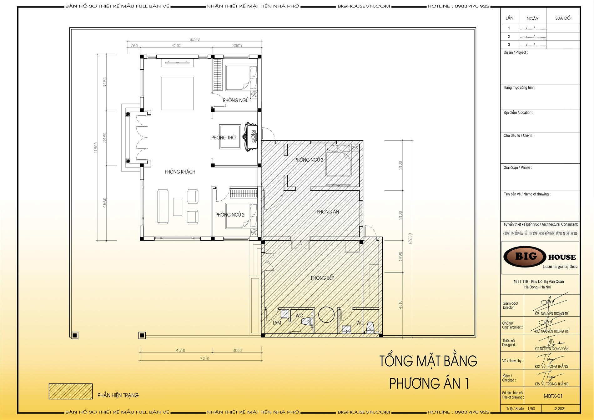
Tổng diện tích: 7,5 x 12,2 = 91,5m2 kết hợp với 100m2 nhà cũ
Công năng: Phòng khách, 3 phòng ngủ, phòng thờ, 2 wc , phòng SHC
Tài chính: khoảng 720 triệu trọn gói cả sân vườn.
MẪU NHÀ CẤP 4 MÁI THÁI CHỮ L - 1T201006
.jpg)
.jpg)
.jpg)
.jpg)
.jpg)
.jpg)
