MẪU NHÀ 2 TẦNG MÁI NHẬT 78M2 950 TRIỆU ĐỒNG - 2T210903

  •  20 Tháng Chín 2021 9:22 CH

  •  1.735 lượt xem

Các bạn đang cần tìm kiếm Mẫu Nhà 2 tầng mái Nhật 78m2 950 triệu đồng để có thêm ý tưởng, phù hợp với kinh phí của gia đình mình đưa ra, nhưng vẫn đảm bảo được tính thẩm mỹ, công năng tiện nghi nhất. Vậy thì Bản vẽ nhà 2 tầng mái Nhật 3 phòng ngủ ở bài viết này sẽ là một mẫu nhà đẹp và phù hợp cho quý khách hàng đang nhọc công đi tìm.

Nhà mái Nhật 2 tầng kiểu hiện đại tại nước ta hiện đang là 1 xu thế được nhiều những chủ đầu tư yêu thích và xây dựng. Tuy nhiên bản vẽ thiết kế để thi công nhà hai tầng mái Nhật có hai phương thức kết cấu khác nhau. Một là kiểu biệt thự 2 tầng mái đúc dán ngói và hai là 1 kiểu không đổ sàn áp mái mà chỉ lên khung kèo li tô mạ kẽm xong lợp ngói. Quyết định lựa chọn phương thức nào là tùy vào mức tài chính dự trù chi phí khi xây dựng của gia chủ. Công ty kiến trúc BIG HOUSE sẽ tư vấn cho quý khách hàng cụ thể nhất trước khi bắt tay vào làm.

Sau đây là thông tin về Mẫu nhà mái Nhật 2 tầng mà bạn quan tâm:

CÔNG TRÌNH: THIẾT KẾ NHÀ 2 TẦNG MÁI NHẬT 78M2 -2T210903

Dự toán: 950 triệu đồng

Diện tích: 7,8 X 10 m

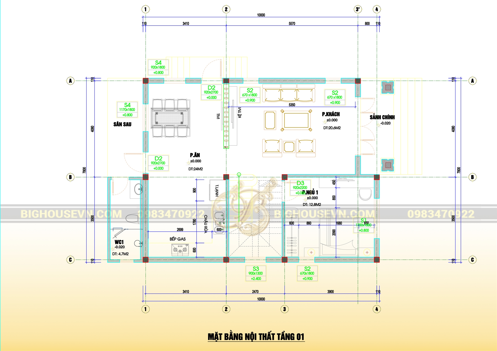
Công năng: 3 phòng ngủ, Phòng khách, Phòng bếp ăn, Phòng Sinh Hoạt Chung, 2WC, Sân phơi

 

Bố trí công năng của mẫu nhà 2 tầng mái Nhật rộng 7,8m:

Mẫu nhà mái Nhật 2 tầng 950 triệu đồng

 

Mặt bằng bố trí nội thất tầng 1 nhà 2 tầng mái Nhật

 

Mặt bằng bố trí nội thất tầng 2 nhà mái Nhật 950 triệu đồng

Phối cảnh 3D Biệt thự mái Nhật 2 tầng:

Thiết kế nhà 2 tầng mái Nhật 78m2

 

Thiết kế mẫu nhà 2 tầng 80m2 3 phòng ngủ

 

Mẫu nhà 2 tầng mái Nhật 78m2 950 triệu đồng

 

Nhà 2 tầng mái Nhật rộng 7,8m 3 phòng ngủ

 

Phối cảnh nhà 2 tầng mái Nhật đẹp 2021

 

Thiết kế mặt tiền nhà 2 tầng mái Nhật 3 phòng ngủ

 

Mặt tiền nhà 2 tầng 78m2 mái Nhật đẹp

Hồ sơ Thiết kế sẽ bao gồm:

Chúng tôi có 3 gói hồ sơ để cho Khách hàng lựa chọn theo nhu cầu:

- Thiết kế phối cảnh 3D mặt tiền: với đồng giá 2 triệu đồng/ nhà

- Hồ sơ thiết kế gói tiết kiệm: trọn gói từ 5 - 7 triệu đồng với tùy yêu cầu cụ thể

- Hồ sơ thiết kế chi tiết thi công bao gồm cả nội thất là 180.000 đ/m2 sàn xây dựng ( với nhà không cần thiết kế nội thất là 120.000 đ/m2)

Mời bạn xem thêm hồ sơ mẫu trên website

Thiết kế mặt tiền nhà mái Nhật 2 tầng 950 triệu đồng

Công ty BIGHOUSE

CHUYÊN THIẾT KẾ MẶT TIỀN NHÀ PHỐ & HỒ SƠ TIẾT KIỆM

  Công ty Cổ phần đầu tư công nghệ kiến trúc xây dựng BIGHOUSE được thành lập từ năm 2013 bởi KTS Nguyễn Trọng Trí và các cộng sự - Chúng tôi với đội ngũ trẻ nhiệt huyết và yêu nghề đã rất thành công tạo dựng được một chỗ đứng vững chắc trong lĩnh vực thiết kế kiến trúc công trình dân dụng tại Hà Nội, đặc biệt chuyên sâu về mảng MẶT TIỀN NHÀ PHỐ và HỒ SƠ TIẾT KIỆM để phát triển sự nghiệp lâu dài. sứ mệnh của chúng tôi gắn với tình yêu nghề và hạnh phúc khi được phục vụ đúng cái khách hàng cần.

  Trong quá trình xây dựng và phát triển, Chúng tôi đã trải qua không dưới hai lần lột xác với những quyết định mạo hiểm, đặt cược số phận Công ty để định hình thương hiệu và mở rộng khai thác thị trường MẶT TIỀN NHÀ PHỐ.

  Hiện tại, chúng tôi tập trung vào những lĩnh vực chính như: Thiết kế Mặt tiền nhà phố, Gói Hồ sơ tiết kiệm, Xây nhà trọn gói. Bằng đường lối lãnh đạo và định hướng phát triển đúng đắn, hiện nay, chúng tôi là đối tác quan trọng của 50 đơn vị thi công trên khắp cả nước. Với chủ trương hoạt động phát triển bền vững, gắn liền lợi ích kinh doanh với lợi ích cộng đồng cùng hàng nghìn công trình tiêu biểu trải dọc đất nước.

Thông qua bài viết này hi vọng quý khách hàng đã có những ý tưởng và một vài lưu ý trước khi thiết kế xây dựng Mẫu nhà 2 tầng mái Nhật 78m2 950 triệu đồng cho mình. Ngoài yếu tố bố trí công năng thì phong thủy cũng là điều tối quan trọng cần phải quan tâm. Liên hệ ngay với BigHouse qua số Hotline: 0983 470 922 để được tư vấn và được hỗ trợ bởi đội ngũ kiến trúc sư dày dặn kinh nghiệm bạn nhé!

Xem thêm các Mẫu nhà 2 tầng được thực hiện bởi đội ngũ KTS Bighouse TẠI ĐÂY>>>